vautz mang architekten bda

Philosophisches Institut
Erfurt
Denken, Kommunizieren, Lehren

Zwei neue Hochhäuser verdichten die zwei Bestandshochhäuser der Universität zu einem städtebaulichen Markierungspunkt in der Erfurter Stadtlandschaft.

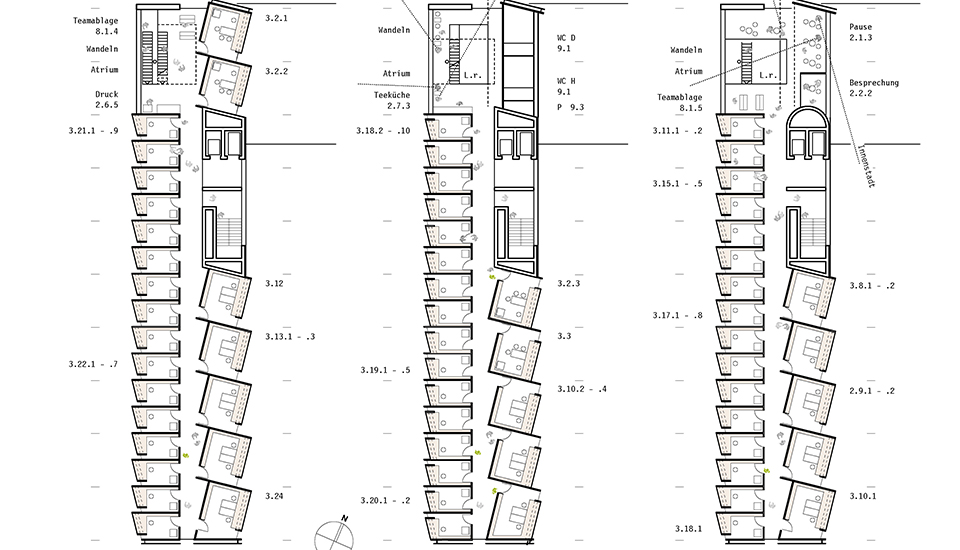
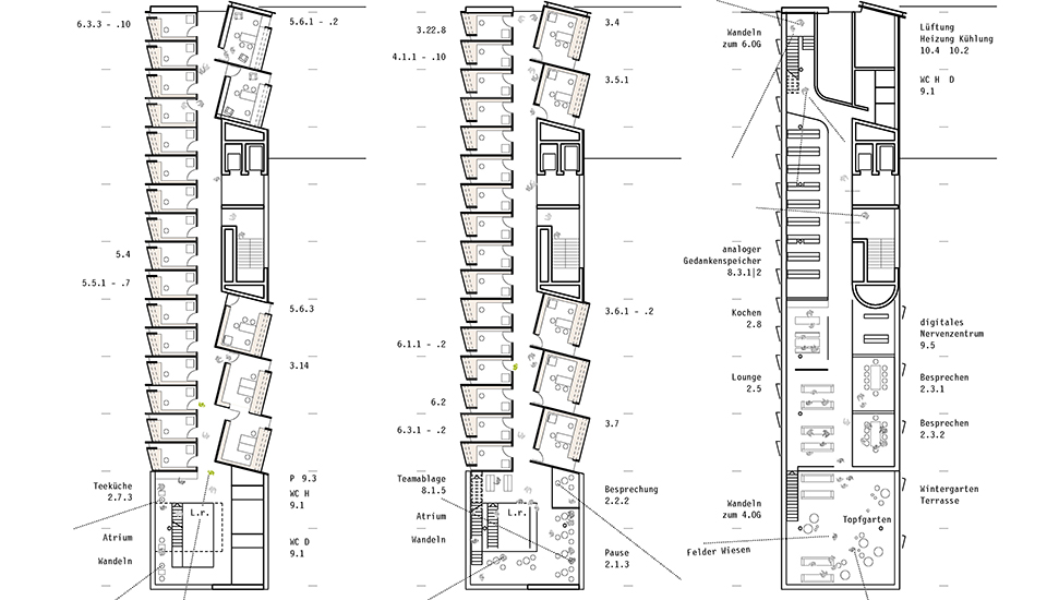
Die Einzel-Denkzimmer der Institutsmitarbeiter sind zugleich introvertiert und nach außen auf den ungestörten weiten Fernblick über das Geratal orientiert.

Der durch alle Obergeschoss führende "Philosophenweg" verbindet als durchgängige institutsinterne Promenade die Denkzimmer mit den Kommunikations- und Treffpunkten in dreigeschossigen Gemeinschaftsräumen, der Bibliothek, der Lounge und den Besprechungsräumen im mittleren Gemeinschaftsgeschoss.

Die zwei unteren Geschosse und der "Philosophenhof" sind öffentlich zugänglich mit Lehrsälen, Ausstellungsfläche und informellen Aufenthaltsangeboten.


in Kooperation mit:
Heiner Luz Landschaftsarchitekten
Furche Geiger Zimmermann (Tragwerk)
Transsolar (energetisches Gesamtkonzept)

Competitionline | Wettbewerbspräsentation

impressum datenschutz